Meadows of Torado Heights
Master‑Planned Living Minutes from Montego Bay
Snapshot

Meadows of Torado Heights is a gated, master‑planned hillside community in Blue Hole, St. James Parish, a short drive from Montego Bay and Sangster International Airport. Phase I delivers 562 detached two‑bedroom houses, 90 apartments, 25 commercial lots, and one school lot in a single execution program. A reserved area accommodates a future phase of 350 apartments, extending the community’s residential mix over time. Access follows the established route Coral Gardens → Torado Avenue → Flower Hill Avenue → Mall Road → Salt Spring → Orange Estate Road, with upgrades planned to strengthen connectivity. The masterplan preserves ~44% open space through parks, green corridors, and terrain‑sensitive grading to suit the site’s topography.
Place & Plan
Location & setting. Situated on approximately 50.45 hectares (126.44 acres) in St. James, the community leverages a ridge‑and‑valley landscape to frame views while keeping daily needs close at hand. A neighborhood park network, nature trails, and landscaped reserves knit homes, amenities, and streets into a walkable whole. A centralized storm‑water strategy and detention ponds are embedded in the concept to manage runoff and reduce maintenance.
Land use & phasing. Phase I concentrates single‑family homes and first‑phase apartments around village‑scale services; the reserved lands host the Phase II apartment program. The result is a community that can grow without losing its open‑space ratio or its everyday functionality.
Access & mobility. Besides the existing approach roads, the plan includes a new ~5 km access improvement and a full internal road grid. Typical internal streets are designed to a right‑of‑way standard of ~11.2 m, with 2.5 m sidewalks on each side and a 6.2 m two‑way carriageway, improving safety and legibility for drivers and pedestrians alike.

Homes & Apartments
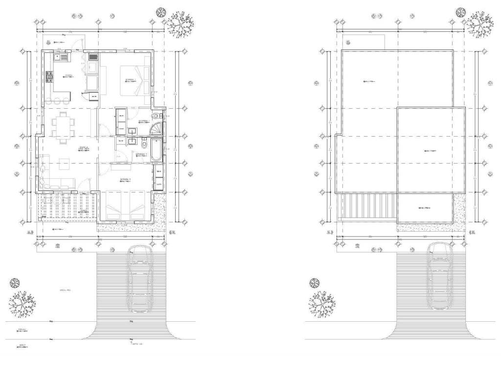
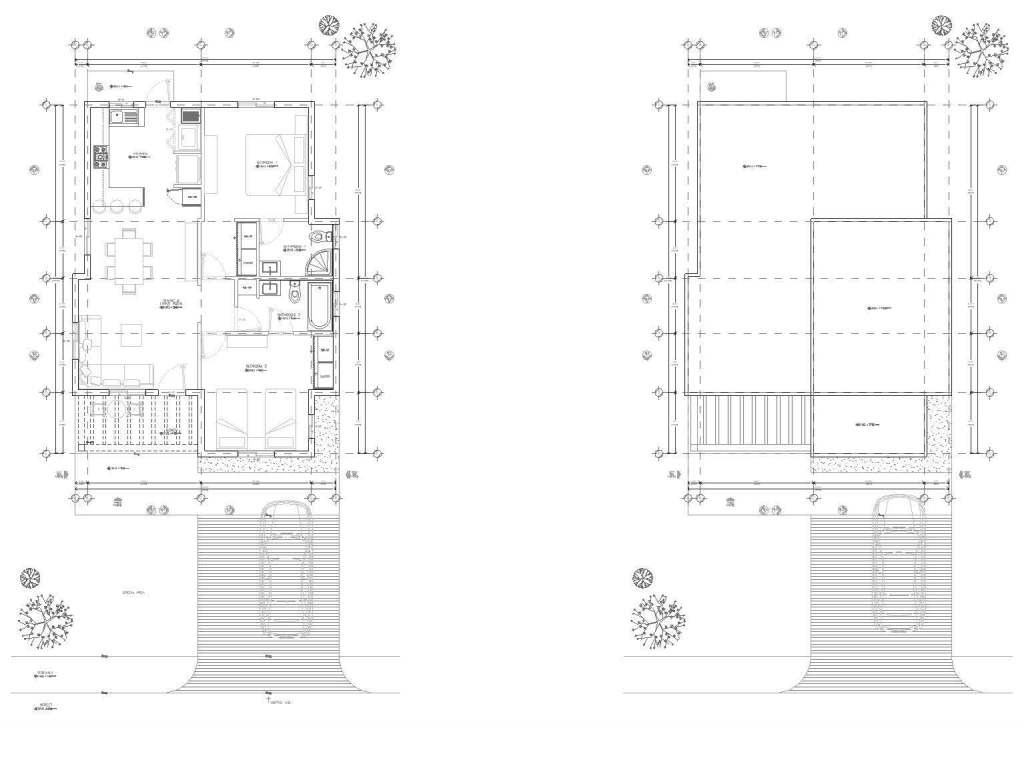
Detached houses (Phase I). The two‑bedroom homes are planned for everyday comfort in a tropical climate: open‑plan living/dining, efficient kitchens with solid‑surface worktops, pre‑plumbed laundry space, and private outdoor areas. Specifications emphasize cross‑ventilation, LED lighting, and durable finishes; exterior assemblies and windows are selected for coastal resilience. Security and utilities are community‑scale—24‑hour controlled access with CCTV, internal roads, site‑wide MEP networks, and connection to a centralized sewage‑treatment plant (STP).
Apartments (Phase I & II). Apartment buildings use controlled lobbies with CCTV, clear wayfinding, and building‑code life‑safety (e.g., fire‑rated doors, illuminated exits). Typical homes combine open‑plan living with balconies, provision for modular closets and A/C rough‑ins, and tiled baths with water‑saving fixtures. Parking is integrated at block level in line with local code, and building systems tie into the community’s MEP backbone for reliable service.
Envelope & systems (all homes). Across typologies, the baseline includes reinforced concrete structure, waterproofed envelope suited to marine exposure, energy‑efficient glazing, LED lighting, and solar‑ready hot‑water systems (final models confirmed at procurement). A homeowner handover package and QA/QC commissioning are planned for each delivery.

Amenities & Everyday Life

Phase I layers resident amenities with a robust common‑area backbone so daily life feels both convenient and secure:
- Village Community Hall for gatherings, light administration, and community programming (with Wi‑Fi).
- On‑site mini‑market and restaurant/café to cover daily needs and casual dining.
- Children’s play areas with shaded seating, plus multi‑use sports courts on flatter terrain.
- Central park and nature trails threaded through the ~44% open‑space network—framed by native and fruit trees, with lighting along main paths.
Landscaped viewpoints, pocket greens, and select public‑space Wi‑Fi nodes at community hubs.
Behind the scenes, a community operations program covers planned maintenance for roads/drainage, the STP and water storage, landscaping, lighting, and play equipment—with periodic reporting to residents or an HOA. Waste‑management points are designated for scheduled pickup, and the life‑safety plan includes hydrants/hose reels, illuminated signage, muster points, and an emergency‑response protocol.
Infrastructure & Resilience

The Meadows concept is “infrastructure‑first,” embedding the utilities and services that raise day‑to‑day reliability and reduce long‑run operating burdens:
- Access & circulation: new ~5 km access improvement; full internal road network and signage.
- Utilities: site‑wide MEP trunk lines for electrical, water, and telecom; water‑storage tank sized for domestic demand and resilience; and a centralized STP (with polishing pond and reuse potential per permits) integrated with the storm‑water plan.
- Earthworks: cut‑and‑fill, terracing, and lot‑formation earthworks tuned to the hillside terrain, with detention implemented early in the sequence.
- Common areas: developer‑maintained parks, trails, and landscaped corridors that reinforce the village setting.
Security is layered—24/7 gatehouse control, perimeter lighting, license‑plate capture, and patrol routes—and paired with clear wayfinding and accessible routes (including curb ramps). Together, these measures support livability for families and long‑stay residents.ivability for families and long‑stay residents.
Delivery & Schedule

The project is organized as one ~36‑month program from permits to commissioning and handover. The execution schedule groups works into four stages—Permits & Preparations; Structural Works & Envelope; Installations & Finishes; Commissioning & Handover—allowing infrastructure and amenity areas to progress in parallel with vertical construction. The plan highlights QA/QC inspections, systems testing and balancing, manuals and as‑built documentation, and title registration prior to delivery. (See the execution‑schedule graphic and time‑distribution chart in the Construction section.)
To keep quality and pace aligned, project governance includes an Investment/Delivery committee cadence, a Project Management Office for cost/schedule control and change‑order governance, independent technical audits, and continuous compliance monitoring for permits and insurances. After delivery, a maintenance schedule (e.g., HVAC, plumbing, electrical, pools, elevators where applicable) underpins operations and resident experience.
Audience & Positioning

The project is organized as one ~36‑month program from permits to commissioning and handover. The execution schedule groups works into four stages—Permits & Preparations; Structural Works & Envelope; Installations & Finishes; Commissioning & Handover—allowing infrastructure and amenity areas to progress in parallel with vertical construction. The plan highlights QA/QC inspections, systems testing and balancing, manuals and as‑built documentation, and title registration prior to delivery. (See the execution‑schedule graphic and time‑distribution chart in the Construction section.)
To keep quality and pace aligned, project governance includes an Investment/Delivery committee cadence, a Project Management Office for cost/schedule control and change‑order governance, independent technical audits, and continuous compliance monitoring for permits and insurances. After delivery, a maintenance schedule (e.g., HVAC, plumbing, electrical, pools, elevators where applicable) underpins operations and resident experience.
At‑a‑Glance

Address: Blue Hole, St. James Parish, minutes from Montego Bay and MBJ.
Scale (Phase I): 562 houses, 90 apartments, 25 commercial lots, 1 school lot; future 350 apartments reserved.
Open space: ~44% of site in parks, trails, and landscaped reserves.
Infrastructure: new ~5 km access improvement; internal roads to 11.2 m ROW standard with 2.5 m sidewalks each side; site‑wide MEP, water‑storage tank, centralized STP, storm‑water detention, lot‑formation earthworks.
Amenities: community hall, mini‑market, café/restaurant, children’s play, central park & trails, sports courts, landscaped viewpoints, select public‑space Wi‑Fi.
Security & operations: 24/7 controlled access with CCTV, life‑safety plan, waste‑management points, planned O&M program.
Delivery: single ~36‑month program with QA/QC, technical audits, and commissioning prior to handover.
